
High temperature and pressure gate valve for power station is used on the pipeline of various systems of PN 20.0–32.0Mpa and working temperature ≤540℃ (570℃ for P57/170V of which) in petroleum, chemical industry, hydraulic, thermal power station etc which is to cut off or get through the medium in the pipeline.
1, Adopting the iso-diameter through-way structure, greatly lowering the flow-resistance coefficient and the energy consumption and notably raising the valve's duration and performance.
2, As the pressure self-tightening sealing structure is used for the valve's mid-cavity, the sealing performance is very excellent.
3, Both the sealing faces of wedge disc and seat ring are made by built-up welding with carbide alloy, so they are wearable, anti-high temperature, anti-corrosion, and good performance of anti-scrap.
4, The stem surface is anti-corrosive nitriding treated, which has good performance of anti-corrosion as well as anti-scrap.
5, The disc structure can be designed as a single-disc, dual-disc, parallel dual-disc etc.
6, Fitted with a multi-rotary type electric actuator, remote control and local operation is realized.
| Design and Manufacture | Face to Face | Pressure Temperature Rating | Inspection and Test |
|---|---|---|---|
| E101, JB/T 3595, DL/T 531 | E101, JB 2766, GB/T 15188.1, JB/T 3595 | E101, JB/T 3595 | E101, JB/T 3595, GB/T 13927, GB/T 26480 |
| Model | PN (MPa) | Strength test (MPa) | Seal / Back seal test (MPa) | Working pressure (MPa) | Working temperature (°C) | Working medium |
|---|---|---|---|---|---|---|
| Z960Y-250 | 25 | 37.5 | 27.5 | — | ≤425 | Water, steam |
| Z960Y-320 | 32 | 48.0 | 36.0 | — | ≤425 | Water, steam |
| Z960Y-P54100 | — | 30.0 | 22.0 | P5410 | ≤540 | Steam |
| Z960Y-P54170 | — | 48.0 | 36.0 | P5417 | ≤540 | Steam |
| Part name | Material (WCB) | Material (WC6) | Material (WC9) |
|---|---|---|---|
| Body | WCB | WC6 | WC9 |
| Disc | WCB | WC6 | WC9 |
| Cover | 25 | 12Cr1MoVA | 12Cr1MoVA |
| Stem | 38CrMoAlA | 20Cr1MoVA | 20Cr1MoVA |
| Seat | 25 | 12Cr1MoVA | 12Cr1MoVA |
| Sealing ring | Mild steel + reinforced flexible graphite | Mild steel | Mild steel |
| Packing | Reinforced flexible graphite | Reinforced flexible graphite | Reinforced flexible graphite |
| Stents | WCB | WCB or WC6 | WCB or WC6 |
| Stem nut | 45 (ZCuZn25a16Fe3Mn3) | ZQA19-4 | ZQA19-4 |
| Pendant collect | 1Cr13 | 20Cr1Mo1VA | 20Cr1Mo1VA |

Z60Y–1500Lb
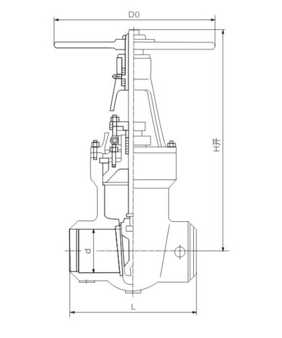
| Size (in) | L (mm) | d (mm) | H (Open) (mm) | D0 (mm) | Weight (kg) |
|---|---|---|---|---|---|
| 2-1/2 | 254 | 56 | 671 | 200 | 50 |
| 3 | 305 | 64 | 692 | 200 | 65 |
| 4 | 406 | 84 | 790 | 230 | 105 |
| 5 | 483 | 100 | 875 | 260 | 150 |
| 6 | 559 | 126 | 1155 | 400 | 300 |
| 8 | 711 | 158 | 1148 | 410 | 500 |
Z60Y–2000Lb
| Size (in) | L (mm) | d (mm) | H (mm) | D0 (mm) | Weight (kg) |
|---|---|---|---|---|---|
| 2-1/2 | 330 | 50 | 640 | 200 | 70 |
| 3 | 368 | 60 | 690 | 230 | 90 |
| 4 | 457 | 80 | 850 | 260 | 150 |
| 5 | 533 | 96 | 1117 | 360 | 210 |
| 6 | 610 | 118 | 1300 | 410 | 438 |
Z60Y–2500Lb
| Size (in) | L (mm) | d (mm) | H (mm) | D0 (mm) | Weight (kg) |
|---|---|---|---|---|---|
| 2-1/2 | 330 | 46 | 640 | 200 | 70 |
| 3 | 368 | 54 | 690 | 230 | 90 |
| 4 | 457 | 70 | 850 | 260 | 150 |
| 5 | 533 | 88 | 1117 | 400 | 210 |
| 6 | 610 | 120 | 1300 | 500 | 438 |

Z960Y–1500Lb
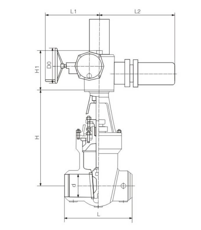
| Size (in) | L (mm) | d (mm) | H (mm) | H1 (mm) | L1 (mm) | L2 (mm) | D0 (mm) | Actuator model | Weight (kg) |
|---|---|---|---|---|---|---|---|---|---|
| 2-1/2 | 254 | 56 | 625 | 262 | 140 | 243 | 200 | SMC-04 | 93 |
| 3 | 305 | 64 | 625 | 262 | 140 | 243 | 200 | SMC-04 | 110 |
| 3 | 305 | 64 | 625 | 376 | 310 | 400 | 200 | 00M2 | 110 |
| 4 | 406 | 84 | 650 | 319 | 198 | 281 | 508 | SMC-03 | 168 |
| 4 | 406 | 84 | 650 | 320 | 400 | 555 | 305 | SMC-00 | 208 |
| 5 | 483 | 106 | 754 | 319 | 198 | 281 | 508 | SMC-03 | 223 |
| 5 | 483 | 106 | 754 | 320 | 400 | 555 | 305 | SMC-00 | 265 |
| 5 | 483 | 106 | 754 | 440 | 295 | 515 | 470 | DZW60A | 265 |
| 6 | 559 | 126 | 884 | 389 | 410 | 565 | 305 | SMC-0 | 395 |
| 6 | 559 | 126 | 884 | 402 | 420 | 654 | 305 | SMC-1 | 430 |
| 6 | 559 | 126 | 884 | 440 | 295 | 515 | 470 | DZW60A | 357 |
| 8 | 711 | 158 | 936 | 389 | 410 | 565 | 305 | SMC-0 | 555 |
| 8 | 711 | 158 | 936 | 414 | 420 | 654 | 305 | SMC-1 | 590 |
| 8 | 711 | 158 | 936 | 450 | 540 | 290 | 550 | DZW90 | 544 |
| 10 | 864 | 210 | 1040 | 490 | 440 | 688 | 457 | SMC-1 | 823 |
| 10 | 864 | 210 | 1040 | 464 | 420 | 654 | 305 | SMC-2 | 852 |
| 10 | 864 | 210 | 1040 | 600 | 565 | 305 | 320 | DZW180 | 900 |
| 12 | 991 | 250 | 1290 | 514 | 420 | 654 | 305 | SMC-1 | 1280 |
| 12 | 991 | 250 | 1290 | 560 | 440 | 688 | 457 | SMC-2 | 1300 |
| 12 | 991 | 250 | 1290 | 710 | 400 | 770 | 570 | ZDW350 | 1500 |
| 14 | 1067 | 282 | 1445 | 710 | 400 | 770 | 570 | ZDW500 | 1725 |
| 16 | 1194 | 318 | 1470 | 697 | 690 | — | 610 | SMC-3 | 2429 |
Z960Y–2000Lb
| Size (in) | L (mm) | d (mm) | H (mm) | H1 (mm) | L1 (mm) | L2 (mm) | D0 (mm) | Actuator model | Weight (kg) |
|---|---|---|---|---|---|---|---|---|---|
| 2-1/2 | 330 | 50 | 540 | 262 | 140 | 342 | 200 | SMC-04 | 202 |
| 3 | 368 | 60 | 558 | 294 | 198 | 332 | 508 | SMC-04 | 149 |
| 4 | 457 | 80 | 654 | 320 | 400 | 555 | 305 | SMC-00 | 245 |
| 5 | 533 | 96 | 780 | 340 | 400 | 555 | 305 | SMC-00 | 280 |
| 5 | 533 | 96 | 780 | 389 | 410 | 565 | 305 | SMC-0 | 323 |
| 6 | 610 | 118 | 830 | 389 | 410 | 565 | 305 | SMC-0 | 419 |
| 6 | 610 | 118 | 1011 | 449 | 531 | 737 | — | 00M4 | 770 |
| 8 | 762 | 148 | 960 | 389 | 410 | 565 | 305 | SMC-0 | 626 |
| 8 | 762 | 148 | 960 | 418 | 420 | 654 | 305 | SMC-1 | 715 |
| 10 | 914 | 180 | 1210 | 480 | 420 | 654 | 305 | SMC-1 | 1020 |
| 10 | 914 | 180 | 1210 | 485 | 440 | 688 | 457 | SMC-2 | 1050 |
| 10 | 914 | 180 | 1210 | 608 | 531 | 767 | — | 00M5 | 770 |
| 12 | 1041 | 222 | 1222 | 600 | 440 | 688 | 457 | SMC-2 | 1320 |
| 12 | 1041 | 222 | 1222 | 650 | 690 | — | 610 | SMC-3 | 1358 |
| 14 | 1118 | 254 | 1254 | 640 | 440 | 688 | 457 | SMC-2 | 1810 |
| 14 | 1118 | 254 | 1254 | 690 | 690 | — | 610 | SMC-3 | 1840 |
| 16 | 1245 | 294 | 1294 | 720 | 690 | — | 610 | SMC-3 | 2270 |
| 16 | 1245 | 294 | 1294 | 790 | 715 | — | 610 | SMC-4 | 2300 |
Z960Y–2500Lb
| Size (in) | L (mm) | d (mm) | H (mm) | H1 (mm) | L1 (mm) | L2 (mm) | D0 (mm) | Actuator model | Weight (kg) |
|---|---|---|---|---|---|---|---|---|---|
| 2-1/2 | 330 | 46 | 533 | 309 | 198 | 332 | 508 | SMC-03 | 143 |
| 2-1/2 | 330 | 46 | 533 | 262 | 140 | 243 | 200 | SMC-04 | 116 |
| 3 | 368 | 54 | 549 | 287 | 198 | 332 | 508 | SMC-03 | 160 |
| 3 | 368 | 54 | 549 | 240 | 140 | 243 | 200 | SMC-04 | 134 |
| 4 | 457 | 70 | 785 | 309 | 198 | 332 | 508 | SMC-03 | 335 |
| 4 | 457 | 70 | 785 | 389 | 410 | 565 | 305 | SMC-0 | 405 |
| 4 | 457 | 70 | 785 | 440 | 515 | 295 | 470 | DZW60A | 377 |
| 5 | 553 | 86 | 810 | 360 | 400 | 555 | 305 | SMC-00 | 324 |
| 5 | 553 | 86 | 810 | 389 | 410 | 565 | 305 | SMC-0 | 341 |
| 6 | 610 | 104 | 906 | 360 | 400 | 555 | 305 | SMC-00 | 467 |
| 6 | 610 | 104 | 906 | 389 | 410 | 565 | 305 | SMC-0 | 507 |
| 6 | 610 | 104 | 906 | 440 | 515 | 295 | 400 | DZW60A | 469 |
| 8 | 762 | 130 | 950 | 389 | 410 | 565 | 305 | SMC-0 | 725 |
| 8 | 762 | 130 | 950 | 414 | 420 | 654 | 305 | SMC-1 | 750 |
| 10 | 914 | 162 | 1050 | 418 | 420 | 654 | 305 | SMC-1 | 1152 |
| 10 | 914 | 162 | 1050 | 500 | 690 | — | 610 | SMC-3 | 1220 |
| 12 | 1041 | 210 | 1230 | 660 | 440 | 688 | 457 | SMC-2 | 1520 |
| 12 | 1041 | 210 | 1230 | 720 | 690 | — | 610 | SMC-3 | 1558 |
| 14 | 1118 | 234 | 1270 | 720 | 690 | — | 610 | SMC-3 | 1869 |
| 16 | 1245 | 264 | 1395 | 720 | 690 | — | 610 | SMC-3 | 2826 |
| 16 | 1245 | 264 | 1395 | 790 | 715 | — | 610 | SMC-4 | 3048 |
| 22 | 1550 | 375 | 2036 | 850 | 905 | 807 | 760 | SMC-5 | 7080 |

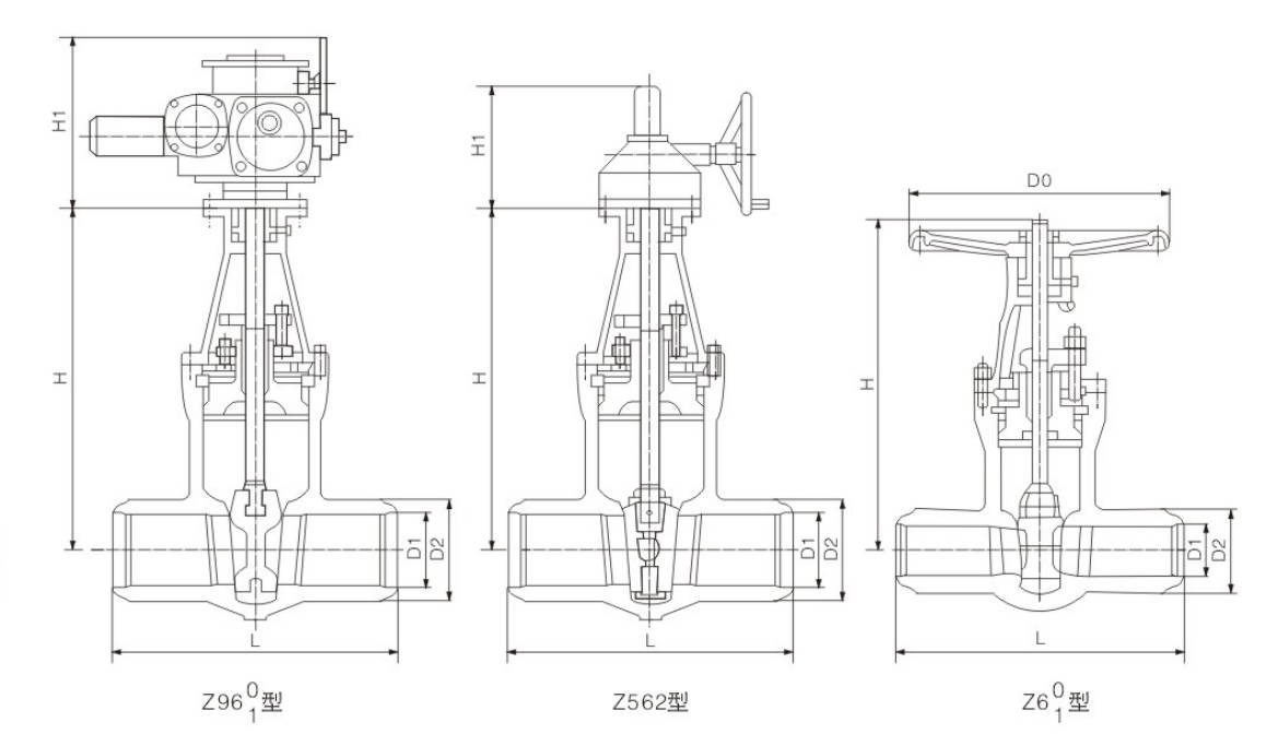
PN 200 (P54 100V)
| DN (mm) | L | D1 | D2 | Do | H | H1 | L1 | Actuator type |
|---|---|---|---|---|---|---|---|---|
| 50 | 279 | 64 | 79 | 300 | 500 | 580 | 590 | Z20 |
| 65 | 330 | 75 | 92 | 300 | 550 | 610 | 590 | Z30 |
| 80 | 368 | 92 | 111 | 350 | 560 | 680 | 810 | Z45 |
| 100 | 457 | 113 | 136 | 450 | 650 | 780 | 810 | Z60 |
| 125 | 533 | 144 | 172 | 500 | 720 | 850 | 810 | Z60 |
| 150 | 610 | 166 | 198 | 600 | 810 | 920 | 810 | Z90 |
| 175 | 750 | 187 | 223 | 700 | 880 | 1025 | 830 | Z120 |
| 200 | 762 | 209 | 250 | 750 | 910 | 1050 | 830 | Z120 |
| 225 | 850 | 233 | 278 | — | — | 1245 | 870 | Z180 |
| 250 | 914 | 275 | 330 | — | — | 1290 | 870 | Z180 |
PN 250 (P54 140V)
| DN (mm) | L | D1 | D2 | Do | H | H1 | L1 | Actuator type |
|---|---|---|---|---|---|---|---|---|
| 50 | 279 | 60 | 79 | 300 | 500 | 580 | 590 | Z20 |
| 65 | 330 | 71 | 92 | 300 | 550 | 610 | 590 | Z30 |
| 80 | 368 | 86 | 111 | 350 | 560 | 680 | 810 | Z45 |
| 100 | 457 | 105 | 136 | 450 | 650 | 780 | 810 | Z60 |
| 125 | 533 | 136 | 172 | 500 | 720 | 850 | 810 | Z60 |
| 150 | 610 | 154 | 198 | 600 | 810 | 920 | 810 | Z90 |
| 175 | 750 | 175 | 223 | 700 | 880 | 1025 | 830 | Z120 |
| 200 | 762 | 195 | 250 | 750 | 910 | 1050 | 830 | Z120 |
| 225 | 850 | 217 | 278 | — | — | 1245 | 870 | Z180 |
| 250 | 914 | 261 | 330 | — | — | 1290 | 870 | Z180 |
PN 320 (P54 170V / P55 170V / P57 170V)
| DN (mm) | L | D1 | D2 | Do | H | H1 | L1 | Actuator type |
|---|---|---|---|---|---|---|---|---|
| 50 | 279 | 56 | 79 | 300 | 500 | 580 | 590 | Z20 |
| 65 | 330 | 67 | 92 | 300 | 550 | 610 | 590 | Z30 |
| 80 | 368 | 80 | 111 | 350 | 560 | 680 | 810 | Z45 |
| 100 | 457 | 101 | 136 | 450 | 650 | 780 | 810 | Z60 |
| 125 | 533 | 124 | 172 | 500 | 720 | 850 | 810 | Z60 |
| 150 | 610 | 144 | 198 | 600 | 810 | 920 | 810 | Z90 |
| 175 | 750 | 163 | 223 | 700 | 880 | 1025 | 830 | Z120 |
| 200 | 762 | 181 | 250 | 750 | 910 | 1050 | 830 | Z120 |
| 225 | 850 | 203 | 278 | — | — | 1245 | 870 | Z180 |
| 250 | 914 | 241 | 330 | — | — | 1290 | 870 | Z180 |
Step 1: Order and Design
According to the customer’s pressure class, size, material, and operating conditions, the design team confirms the specifications of the high pressure gate valve. Detailed drawings are then prepared, including the body, bonnet, gate, stem, seat, and connection dimensions, to ensure the valve meets high-pressure service requirements.

Step 2: Forging & Casting
The main pressure-bearing parts of the high pressure gate valve, such as valve body, bonnet, and gate, are produced by forging or precision casting based on the material and design standard. After forming, raw parts are inspected for internal defects, surface quality, and dimensional allowance before machining.

Step 3: Machining
All components are machined using CNC lathes, boring machines, and milling equipment. Critical parts of the high pressure gate valve such as sealing surfaces, stem threads, guide grooves, and flange ends are processed with high precision to ensure sealing performance, pressure resistance, and smooth operation.

Step 4: Assembly
After machining and cleaning, all parts are assembled in sequence, including seat rings, gate, stem, bonnet, gasket, and actuator or handwheel. During assembly of the high pressure gate valve, special attention is paid to alignment, sealing contact, and tightening torque to guarantee reliable operation under high pressure.

Step 5: Testing & Quality Assurance
Each high pressure gate valve undergoes strict inspection and testing, including dimensional inspection, material verification, shell pressure test, seat leakage test, and operational test. Quality control ensures that the finished valve complies with relevant standards and customer specifications.

Step 6: Painting and Finishing
After testing, the valve surface is cleaned, anti-rust treated, and coated as required. Nameplate, marking, and protective covers are added before packing, so the product is ready for storage and shipment.

High pressure gate valves are a critical piece of equipment widely used in industrial applications, primarily for controlling the flow of media within pipelines. They perform exceptionally well under high-pressure conditions and are therefore widely adopted in industries such as oil and gas, chemicals, and power generation. The main advantages of high-pressure gate valves include excellent sealing performance, a robust structural design, a long service life, and ease of maintenance.
These valves are widely used in:

Oil and Gas

Chemical Processing

Power Plants

Water Treatment

Metallurgy and Mining

Agriculture and Irrigation






Superior Quality

Our valves are manufactured using premium materials and undergo rigorous quality testing to ensure reliable performance in demanding industrial applications.
Advanced Technology

Equipped with state-of-the-art CNC machining centers and precision manufacturing equipment, we deliver valves with exceptional accuracy and consistency.
Competitive Pricing

Through optimized manufacturing processes and bulk material procurement, we offer high-quality valves at competitive prices without compromising on quality.
Expert Support

Our experienced technical team provides comprehensive support from product selection to after-sales service, ensuring optimal valve performance for your specific application.
Request a Quote